瑞鑫水工机械厂是从事水工机械研发、生产、销售于一体厂家。
联系方式 more +

联系人:武经理

手机:13933744225

电话: 0319-4786765

传真: 0319-4845306

邮箱: 776150030@qq.com

网址:www.rxztzm.com  

地址:河北省邢台市新河县城北工业区

相关知识

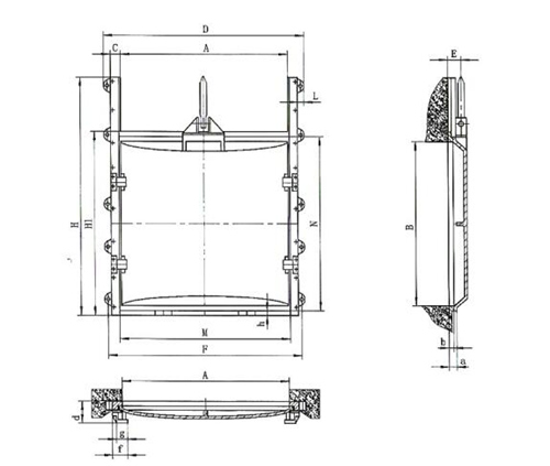
0.6×0.6米的铸铁闸门选型避坑指南

发布日期:2025-08-29 20:49:46浏览:5 次

上周一个客户就差点翻车:他按图纸订了个0.6×0.6米的铸铁闸门,结果到货一比对,“两边各少了5mm”!门框卡死,拆都拆不下来。*后只能返厂重做,耽误了半个月工期,还赔了人工费。“这事儿真不是小问题,今天我就把常见尺寸的“避坑指南”给你讲透。”

🔍 常见尺寸铸铁闸门选型参考表(结合真实项目经验)

尺寸(宽×高)适配场景关键参数(依据GB/T 9439-2023、SL 176-2007)供货周期客户高频问题
300×300 mm农村灌溉支渠、小型排水口材质:HT200灰铸铁;承压≤0.6MPa;启闭方式:手轮/螺杆式10-15天门框与墙体预留间隙不足,导致安装困难
0.6×0.6 m泵站进水口、排涝口HT250灰铸铁;承压0.8MPa;带止水橡皮;电动或手动启闭15-20天门体与井口尺寸偏差,门关不严漏水
0.8×0.8 m中小型水库泄洪口、雨水调蓄池HT250+防腐涂层;承压1.0MPa;双吊点手电两用启闭机20-25天启闭力过大,工人操作吃力
1×1 m水利枢纽分水口、城市管网节点HT250+表面喷锌处理;承压1.2MPa;电动控制箱配套25-30天未考虑基础预埋件位置,安装错位
2×2 m大型泵站主进水口、防洪闸HT300高强度铸铁+整体焊接结构;承压1.6MPa;液压启闭系统40-60天重量超限,吊装设备不够,无法进场

✅ “小贴士”:实际采购时,建议“预留5-10mm余量”(比如孔口0.6m,闸门选0.61m),避免因施工误差卡死。

🚫 客户容易踩的三大坑,我来帮你绕过去

❌ 坑1:尺寸测量不** → 门装不上

真实案例“:某县灌区项目,客户只量了“内口尺寸”,没测墙厚和预埋槽深度。结果闸门进了洞,”门框却卡在墙体里出不来。

文章配图

👉 “解决办法”:

测量必须包括:“内口净尺寸 + 两侧墙体厚度 + 预埋槽深度”

用激光测距仪+钢卷尺双重校验,拍照发给厂家确认

我们标配一份《安装尺寸核对清单》,客户签字确认后才生产

❌ 坑2:参数匹配错,用着用着就漏水

真实案例“:有个0.8×0.8m的闸门,客户图便宜买了“普通HT200”,用了不到一年,”闸板变形,止水橡皮脱落,暴雨天漏得像筛子。

👉 “解决办法”:

水头超过3米或频繁启闭的,必须用HT250以上材质

止水橡胶必须是“三元乙丙(EPDM)”,耐老化、抗撕裂

文章配图

我们所有闸门出厂前都会做“0.1MPa气密性试验”,附检测报告

❌ 坑3:供货周期没沟通,耽误工期

真实案例“:客户临时要2米×2米的大闸,说“下周就要用”,我们收到订单才发现需定制焊接结构,”*快也要40天。客户急得跳脚。

👉 “解决办法”:

提前30天报需求,明确是否需要加急

我们有“标准件库存”(如0.6×0.6、1×1以下),可“7天发货”

大尺寸提前备料,签订“工期承诺书”

✅ 给你的3条落地建议(真的能救命)

下单前先发一张“实拍尺寸图”给我们,我们帮你核对是否合理,避免“买错尺寸”

文章配图

别只看价格,重点问清:材质等级、止水方案、是否含安装指导

大尺寸项目务必签合同备注“延期赔偿条款”,保障你的工程进度

别再为尺寸焦头烂额了。“我见过太多项目,不是技术不行,而是细节没盯住”。

如果你正在选型,直接把你的“具体尺寸+使用场景”发给我,我帮你快速判断——“不用猜,不踩坑,按时装上,稳稳运行”。

TAG标签:
微信扫码咨询

联系人:武经理

手机:13933744225

电话: 0319-4786765

传真: 0319-4845306

邮箱: 776150030@qq.com

网址:www.rxztzm.com  

地址:河北省邢台市新河县城北工业区

冀ICP备14015322号-7

Baidu
map